The Spartanburg District Five Schools Board of Trustees voted on items related to the South Transportation Hub project and district strategic plan at its regular meeting on Monday night.
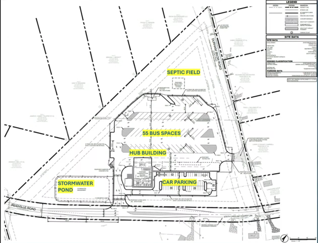
The Board had two action items to consider, first hearing the Guaranteed Maximum Price for a second phase of development on the South Transportation Hub. This will be a 10,000-square-foot facility located on Reidville Road near Durham Snow Road.
According to district officials, this second phase of development includes costs of the building itself, fencing, site irrigation and landscaping. Additionally, this phase includes the costs of a road-widening project on Riedville Road to accommodate the facility.
The first phase, which included the costs of on-site clean-up work and the creation of the building structure, was previously approved with a maximum price of $3,208,972. The second phase’s guaranteed maximum price came out to $3,673,667, bringing the total project cost to $6,882,639. The Board approved this figure unanimously.
When the South Transportation Hub is complete, district officials say the facility will include office space, a training room for up to 100 people, extra storage and two vehicular bays for cleaning and light mechanical work. As of Monday, clean-up work at the site is ongoing. Tree clearing began on April 3, and the district is awaiting a permit to proceed with stump removal.
The second action item considered by the Board was the yearly District Strategic Plan renewal. This is a routine update to district performance goals based on current performance and projections. The Board approved the update unanimously.
Following its action items, the Board heard an update on the naming of the new elementary and middle school set to open in the southern end of the district for the 2028-29 school year. These two projects are under the $200 million bond referendum that passed in November, aimed at alleviating over-crowing concerns.
District Communications Director Melissa Robinette spoke to the Board about the naming of the new schools. A committee of parents, teachers and administrators from River Ridge, Reidville and Abner Creek elementary schools convened a few weeks ago to discuss potential names, with two options presented to the Board for each school.
For the new elementary school, Robinette says the committee’s top pick was Lightwood Crossing Elementary School, alluding to the adjacent Lightwood Road. The second pick was Pine Grove Elementary School, alluding to pine trees planted on the property.
For the new middle school, the committee’s top pick was Sharon Grove Middle School, with “Grove” being a nod to the pine grove, and Sharon alluding to neighboring properties. The second pick was Reidville Road Middle School, being location-based.
The Board did not take any action on naming the schools, and the presentation was for information purposes only. Robinette says that the topic will be brought back to the Board at its next meeting.
For more information on the Spartanburg District Five Board of Trustees, visit its website. The next board meeting will be held on Monday, May 18, 2026.


